功能改造设计(民用建筑)
1、适用范围:
本项设计主要解决由于建筑结构功能改变需要提高原设计使用荷载,有时会遇到大幅度提高使用荷载的情况,导致原结构主要承重构件承载力不满足规范要求,采用传统的加固方法提高结构承载力又非常有限,急需采取有效的加固方法来解决此类工程问题。
2、设计依据
《建筑结构荷载规范》(GB5009-2012)
《建筑结构可靠度设计统一标准》(GBJ50068-2001)
《混凝土结构设计规范》(GB50010-2010)
《混凝土结构加固设计规范》(GB 50367-2013)
《混凝土结构后锚固技术规程》(JGJ 145-2013)
《建筑结构加固工程施工质量验收规范》(GB50550-2010)
3、加固大样图
(楼面加固做反向钢梁)
注:一般应用于电信机房改造中受限于加固条件只能在楼板面施工的情况。
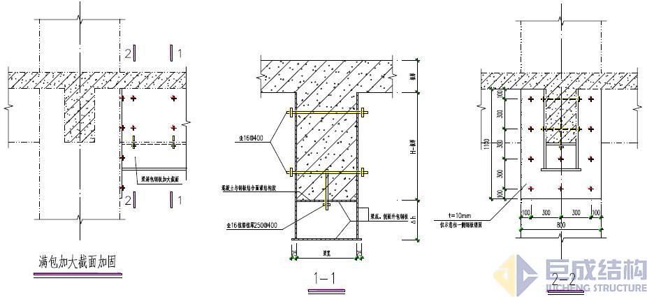
(梁包钢加大截面加固)
注:一般应用于大幅度提高使用荷载,构件截面尺寸不够,且受限于工期和现场条件,不适宜采用传统的增大混凝土截面做法的情况。
注:一般应用于楼板使用荷载提高,楼板承载力相比原设计有10%20%的差距,需小幅度提高楼板承载力的情况。
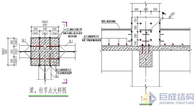
(板底新增钢梁加固)
注:一般应用于大幅度提高使用荷载,楼板承载力不足或局部增加较大集中荷载,不适合采用传统的楼板粘贴钢板或纤维布的方式,需大幅度提高楼板承载力的情况。
(楼板开洞加固)
注:一般应用于对原有楼板开洞,切断原楼板钢筋,需对开洞区域进行补偿加固的情形。
加固设计范例:
泸定公司施工图 下载
- 上一篇: 脱硫、脱销及超净排放加固设计(工业与火力发电)
- 下一篇: 结构抗震加固设计(民用建筑)


