粘结型钢加固技术
一、适用范围
1)粘结型钢加大截面加固法:适用于原结构梁截面不足,需要大幅度提高截面承载力,而由于条件限制无法采用混凝土加大梁截面的传统方法施工,通过粘结与锚结将型钢梁与原混凝土构件连接成整体,通过加大构件截面,大幅度提高其承载力和刚度;
2)粘结型钢改变传力途径加固法:适用于原结构楼面荷载大幅度提高或增加较大局部荷载,通过在板底粘型钢改变传力途径或减小跨度提高楼板承载力;
3)设计依据
《建筑结构荷载规范》(GB5009-2012)
《建筑结构可靠度设计统一标准》(GBJ50068-2001)
《混凝土结构设计规范》(GB50010-2010)
《混凝土结构加固设计规范》(GB 50367-2013)
《混凝土结构后锚固技术规程》(JGJ 145-2013)
《建筑结构加固工程施工质量验收规范》(GB50550-2010)
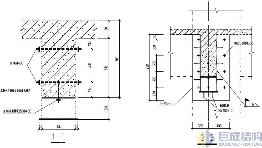
二、粘接型钢加固应用范例
三、原理简介:
思路起源为铁摩辛柯梁,通过界面粘结、剪切键或植筋实现加固型钢与与被加固结构连成整体联合工作,符合加固理论。
四、施工工艺
1、粘接型钢加大截面
1)凿除原结构表面粉刷层,并将表面清理干净;
2)在结构构件植筋位置处及钢板预钻孔;
3)将处理好的钢板按图纸要求定位、焊接;
4)植筋,灌注结构胶至饱满密实;
5)钢构件表面外粘粗砂供粉刷使用,后期表面装修水泥砂浆厚度不小于30mm;
6)所有粘钢构件应先焊接后灌胶。
2、板底粘贴型钢加固
1)凿除原结构表面粉刷层,并将表面清理干净;
2)在结构构件植筋位置处及钢板预钻孔;
3)将处理好的型钢按图纸要求定位、焊接;
4)植筋,灌注结构胶至饱满密实;
5)构件表面涂刷防腐、防锈处理。
五、工程案例
泸定公司施工图 点击下载


